Продается просторная , светлая и теплая 3-комнатная квартира на Советских Пограничников,112 (синие крыши)
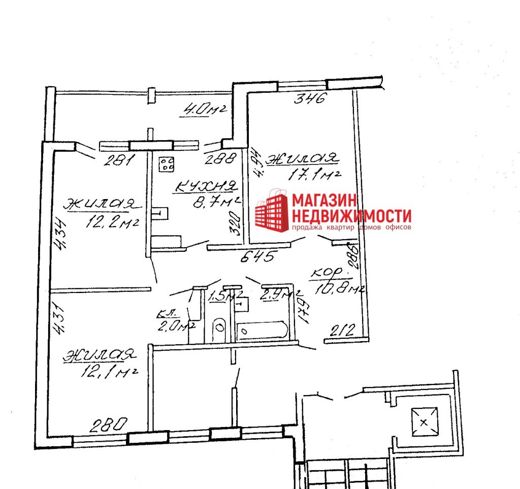
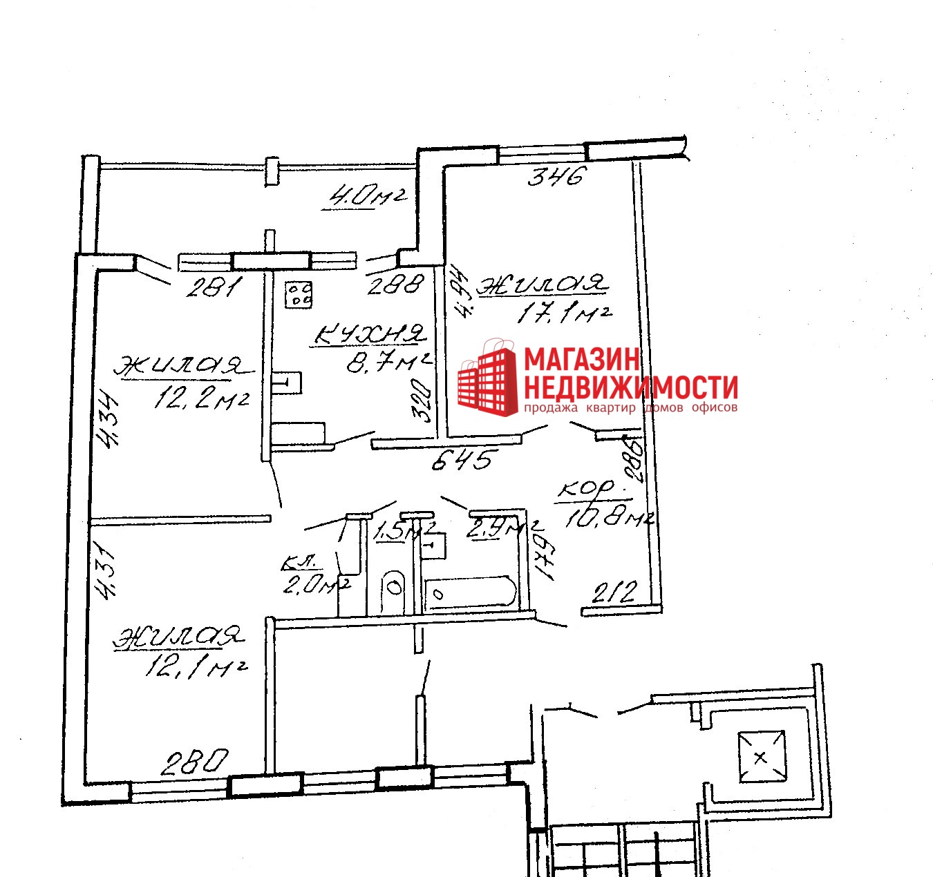
Общая площадь квартиры по СНБ -71.3 кв.м, в т.ч. кухня 8.7 кв.м, гостиная -17.1 кв.м.,две спальни- 12.2 и 12.1 кв.м.
Квартира расположена на 9 этаже панельного дома 1999 года постройки . На лестничной клетке три квартиры. За квартирой закреплена вместительная кладовка (на этаже) и два больших подвала.
В квартире большая застекленная лоджия . Выход на лоджию с кухни и со спальни . Установлены счетчики на воду ,газ и электричество. Все окна в квартире -деревянные стеклопакеты, пол- натуральная доска, сан.узел и кухня -плитка , потолок -снежка.
Дом оборудован системой видеонаблюдения. Расположен дом в районе с развитой инфраструктурой: детские садики, гимназия , лесопарковая зона «Лососно» с пляжем возле р. Неман, много магазинов и супермаркетов, кинотеатр «Октябрь», больница скорой медицинской помощи, банк, мини -рынок, остановки общественного транспорта в любую точку города. Такое месторасположение дома идеально подходит для комфортной жизни всей семьи.
Чистоту сделки и юридическое сопровождение гарантируем. Организуем оперативный показ. Работаем с привлечением кредитных средств. Поможем продать Вашу недвижимость для покупки этой.
3-комнатная квартира на ул. Советских Пограничников, 112
3-комнатная квартира на ул. Советских Пограничников, 112
на карте- Площадь общая: 71,3 м2
- Жилая: 41,4 м2
- Кухня: 8,7 м2
- Этаж: 9/9
- Стоимость: 68000$ / 202204.8р.
Контакты
Описание
Параметры объекта
- Кол-во комнат3
- Этаж/этажность9/9
- Площадь общая71,3
- Площадь жилая41,4
- Площадь кухни8,7
- Год постройки1999
- Высота потолков2,53 м
- Ремонткосметический
- Тип домапанельный
- Балконлоджия застекленная
- Санузелраздельный
- СобственностьЧастная индивидуальная
- Условия продажиПродажа
Объект на карте
Местоположение
- ОбластьГродненская область
- РайонОктябрьский район
- Населенный пунктг. Гродно
- Адресул. Советских Пограничников, 112
Прочие
- Готова к проживаниюЕсть
- ВидеонаблюдениеЕсть
- ПарковкаЕсть
- Остановки общ. транспортаЕсть
- МагазиныЕсть
- АптекиЕсть
- Детский садЕсть
- ШколаЕсть
- ПоликлиникаЕсть
- Досуг и развлечениеЕсть
- ЛифтЕсть
- ПодвалЕсть

Не нашли подходящего объекта у нас на сайте?
Оставьте свои контакты и мы подберём для Вас несколько вариантов недвижимости по Вашим параметрам
Похожие объекты






























































ссылка на реквизиты