Продаётся двухкомнатная квартира с великолепным видом из окон на сосновый лес. Жилой дом расположен на улице Суворова, дом 312 (р-н «Колбасино»). Год постройки 2018. Этаж 11/14. Чистый подъезд, грузовой и пассажирский лифт. Детская площадка и достаточно мест для парковки автомобиля.
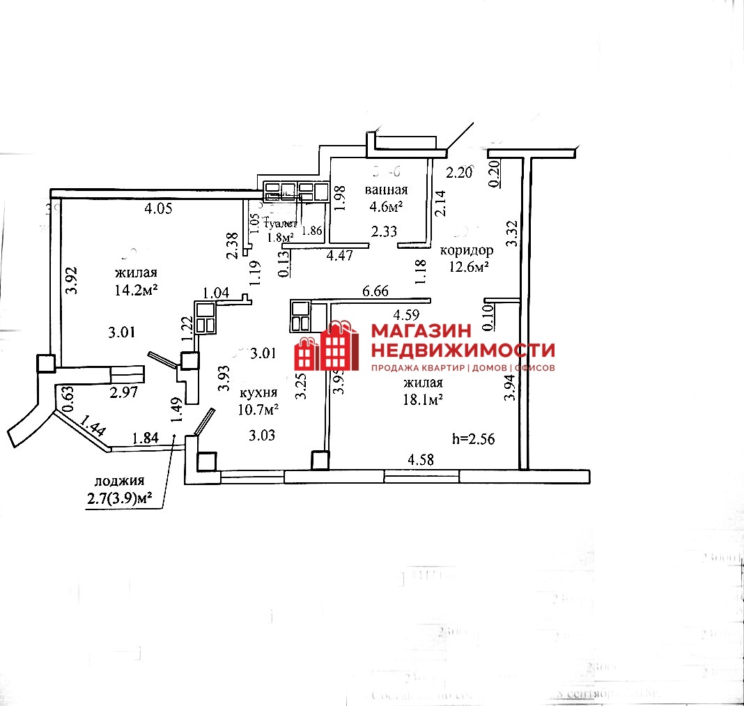
Хорошая планировка квартиры. Общая площадь квартиры по СНБ 64,7 кв.м., общая площадь жилых помещений 62,0 кв.м. Жилая площадь 32,3 кв.м. (14,2 +18,1 кв.м.). Площадь кухни 10,7 кв.м. Преимущества планировки комнаты широкие, на застеленную лоджию есть выход и из кухни и из жилой комнаты. Просторная ванная площадью 4,6 кв.м. почти квадратной формы. Площадь коридора 12,6 кв.м.
Квартира без отделки, с возможностью сделать ремонт на свой вкус. Рядом остановка общественного транспорта, магазины и другие объекты социального назначения.
Звоните в Магазин Недвижимости, риэлтер Нина.
Новая 2-комнатная квартира на ул. Суворова, 312
Новая 2-комнатная квартира на ул. Суворова, 312
на карте- Площадь общая: 62 м2
- Жилая: 32,3 м2
- Кухня: 10,7 м2
- Этаж: 11/14
- Стоимость: 76300$ / 215059.18р.
Контакты
- Нина Пыльская (Риэлтер)

Описание
Параметры объекта
- Кол-во комнат2
- Этаж/этажность11/14
- Площадь общая62
- Площадь жилая32,3
- Площадь кухни10,7
- Год постройки2018
- Высота потолков2,56 м
- Ремонтбез ремонта
- Тип домапанельный
- Балконлоджия
- Санузелраздельный
- СобственностьЧастная индивидуальная
- Условия продажиПродажа
Объект на карте
Местоположение
- ОбластьГродненская область
- РайонОктябрьский район
- Населенный пунктг. Гродно
- Адресул. Суворова, 312
Прочие
- ПарковкаЕсть
- Остановки общ. транспортаЕсть
- МагазиныЕсть
- АптекиЕсть
- Детский садЕсть
- ШколаЕсть
- ПоликлиникаЕсть
- Досуг и развлечениеЕсть
- ЛифтЕсть

Не нашли подходящего объекта у нас на сайте?
Оставьте свои контакты и мы подберём для Вас несколько вариантов недвижимости по Вашим параметрам
Похожие объекты


















































ссылка на реквизиты