В продаже уютная четырёхкомнатная квартира в отличном районе с развитой инфраструктурой по адресу пр-т Я. Купалы. 72/1
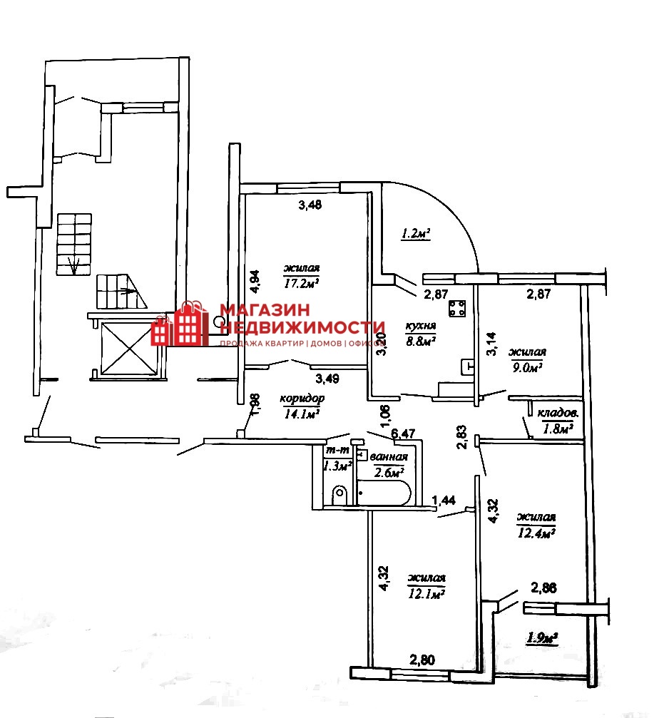
Квартира расположена на 1 этаже 10-этажного панельного дома 1988 года постройки. Общая площадь квартиры 82,4 м2., жилая площадь 50,7 м2, площадь кухни 8,8 м2 с выходом на просторную лоджию, отличается удачной планировкой.
Чистый подъезд, стоянка для автомобилей.
Красивый, ухоженный зелёный двор, детская площадка.
Рядом с домом находятся детские сады, школы, гимназия, теннисный корт для проведения досуга, поликлиника, продовольственные магазины, мини-рынок, крупнейший торгово-развлекательный центр «Тринити», Румлевский парк для прогулок, река Неман. Проспект Я. Купалы имеет большую популярность за счет хорошо развитой инфраструктуры и удобного транспортного сообщения. Этот единственный микрорайон города, который так динамично и гармонично развивается.
Здесь будет комфортно Вам и Вашей семье!
Мы готовы к диалогу!
Звоните!
По всем интересующим вопросам обращаться по номеру +375 29 265-11-25, Viber, Telegram, WhatsApp






















































ссылка на реквизиты