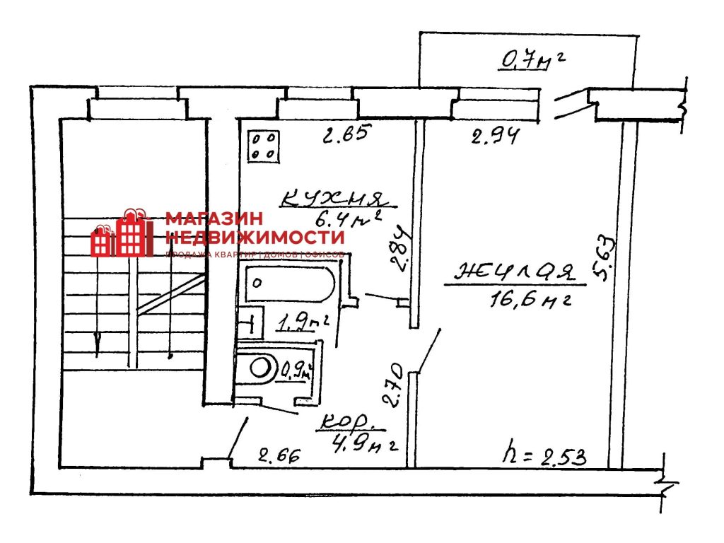
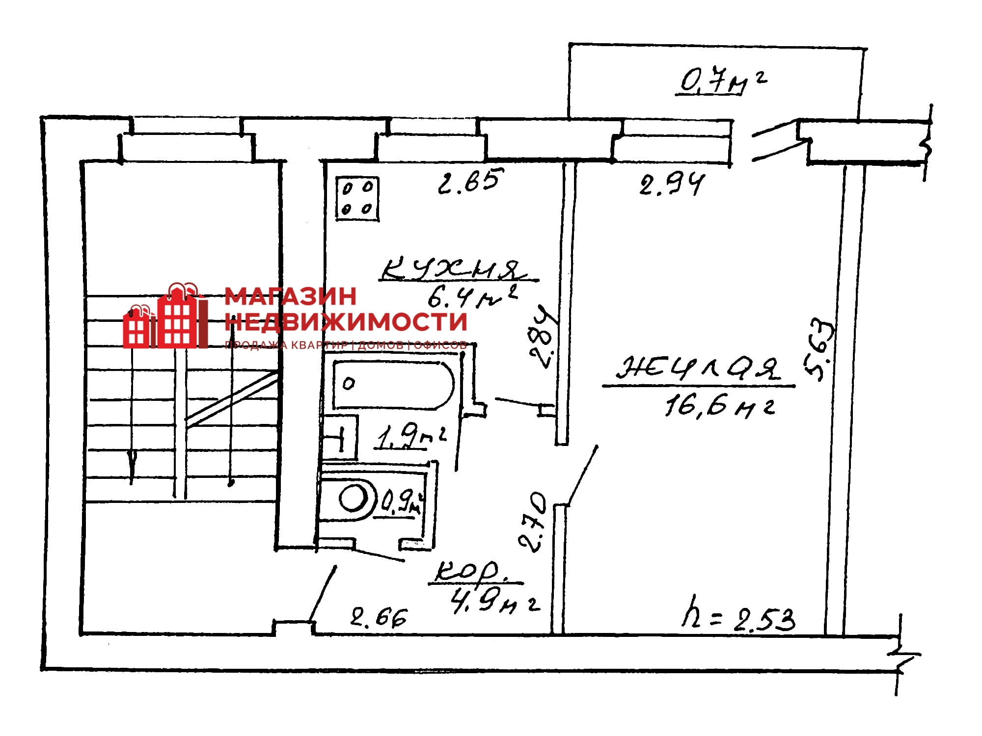
Квартира расположенная на 4 этаже 5-этажного кирпичного дома 1965 года постройки. Площадь квартиры по СНБ 31,4 м2 (в т.ч. балкон), общая – 30,7 м2, жилая – 16,6 м2, кухня – 6,4 м2, высота потолков 2,53 м. Окна – ПВХ; пол: в жилой комнате – ДВП, кухне и прихожей – линолеум, санузел – керамическая плитка; стены: комната и прихожая – обои и элементы декора, санузел – керамическая плитка; потолок: окрашен. Санузел совмещенный, установлена сантехника, оснащен ванной, раковиной с тумбой и зеркалом, унитазом, заменены трубы (установлены полипропиленовые). Встроенная кухня, газовая плита, установлены стиральная машина и холодильник. Входная дверь металлическая. При продаже мебель и техника остаются новому владельцу по согласованию.
Рядом расположены все необходимые социальные объекты (ТЦ, магазины, в т.ч. интернет-магазины, школы, детские сады). До пешеходной улицы — излюбленного места туристов и гостей города — 500 метров. Рядом жемчужина Гродно великолепная прогулочная зона — Швейцарская долина и парк Жилибера. Лучшие кафе и рестораны города, исторические достопримечательности — всё в шаговой доступности. Недалеко оба городских вокзала (ж/д и авто).
Самое комфортное расположение как для деловых людей, так и для тех людей, кто любит пешие прогулки по паркам, посещать экскурсионные залы Нового и Старого замков, площадь имени Тызенгауза, театр кукол. Эта квартира станет отличным выбором для тех, кто хочет проживать в гуще городских событий. Не упустите свой шанс приобрести эту квартиру. Квартира готова к проживанию !
Эта квартира может стать выгодной инвестицией в качестве объекта под аренду.
Звоните! Мы открыты и готовы к диалогу!
По всем интересующим вопросам обращаться по телефону: +375 29 786 85 44 МТС, Telegram, Viber, WhatsApp, +375 44 702 86 55 А1 Антон.




















































ссылка на реквизиты